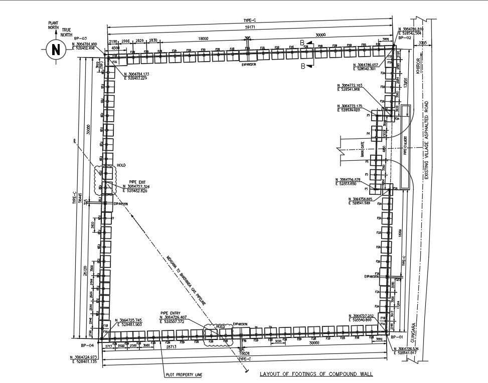
AutoCad drawing file having the Layout of Footings of Compound Wall.Download the AutoCAD 2D DWG file.
Description
AutoCad drawing file having the Layout of Footings of Compound Wall. The layout of the footings and what to do with the footing excavation excess soil material should be considered together. Some construction supervisor's use batter boards at each corner to give the line and the grade of the building. Others use offset hubs to determine line and an elevation benchmark for grade. he foundation plan is a plan view drawing, in section, showing the location and size of footings, piers, columns, foundation walls, and supporting beams. Download the AutoCAD 2D DWG file. Thank you so much for downloading DWG file from cadbull website.
Uploaded by:

